Квартира

Жк «Переделкино ближнее»

Логотип OR Studio
53 кв.м
Площадь:
Год:
Услуга:
Заказчик:
2023г
Разработка проекта “под ключ”
Молодая пара

Задачи проекта:

РЕШЕНИЕ:

У заказчиков от застройщика угловая квартира, которая имеет несущий пилон в центре помещения, три окна на две стороны и маленькую кладовку при входе.
OR STUDIO
Выделить рабочие места в спальне с возможностью закрыться от зоны с кроватью, кухню перенести и расширить по длине, организовать гардеробную на месте кладовой и большого коридора.
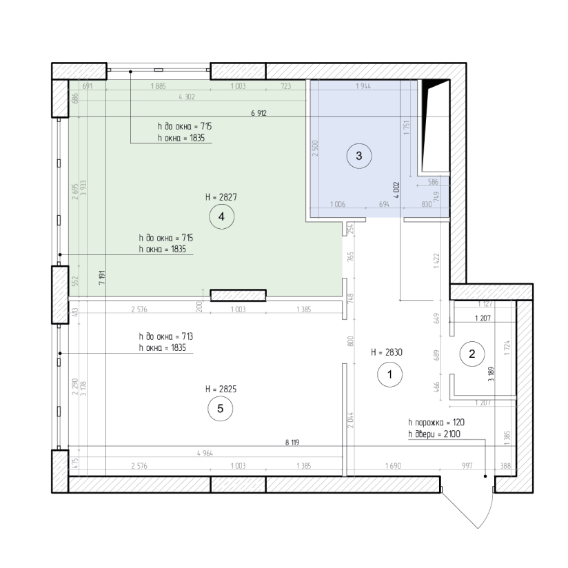
ИСХОДНЫЙ ПЛАН
РЕАЛИЗАЦИЯ
Обмерный план
Обмерный план
Необходимо было разместить изолированную спальню с размером матраса 1600, предусмотреть два рабочих места, место для макияжа, большой душ без поддона и кухню с большой рабочей поверхностью.
Дизайн проект Переделкино ближнее
Дизайн проект Переделкино ближнее
Дизайн проект Переделкино ближнее
Дизайн проект Переделкино ближнее
Дизайн проект Переделкино ближнее
Дизайн проект Переделкино ближнее
Дизайн проект Переделкино ближнее
Дизайн проект Переделкино ближнее
Дизайн проект Переделкино ближнее
Дизайн проект Переделкино ближнее

ИТОГОВЫЙ РЕЗУЛЬТАТ:

Спокойный современный интерьер с большой системой для хранения

Есть вопросы по разработке ВАШЕГО проекта?

Оставьте заявку на бесплатную консультацию и мы свяжемся с вами в ближайшее время
Заполняя форму вы соглашаетесь с политикой обработки персональных данных http://or-studio.ru/policy
*Meta признана экстремистской и запрещена на территории России
Логотип OR Studio