Квартира

Жк «Homecity»

Логотип OR Studio
51 кв.м
Площадь:
Год:
Услуга:
Заказчик:
2024г
Разработка проекта “под ключ”
Квартира для пары

Задачи проекта:

РЕШЕНИЕ:

Квартира с потолками 4,3 метра и выходом на собственную террасу. Требуется предусмотреть много места для хранения, спальня с большой кроватью, сауна, кухня-гостиная.
OR STUDIO
Созданть второй ярус над ванной, кухней и кладовой. Мастер блок на втором этаже со спальней, гардеробом, ванной и сауной. Под лестницей организовать места хранения. Поставить двусторонний диван, который позволит общаться в столовой и смотреть телевизор
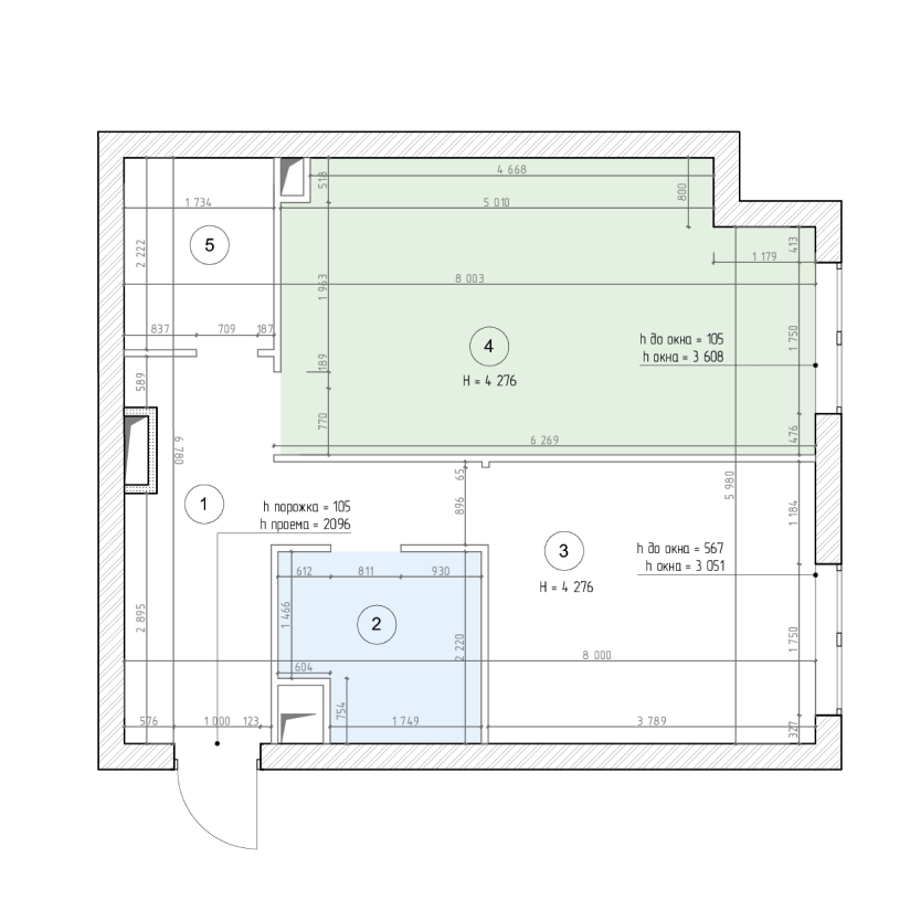
ИСХОДНЫЙ ПЛАН
РЕАЛИЗАЦИЯ
Обмерный план
Обмерный план

ИТОГОВЫЙ РЕЗУЛЬТАТ:

Получилась квартира с ощущением маленького загородного дома. Поручни из стекла в спальне объединяют пространство и открывают вид на гостиную. Стеклоблоки в ванной и душе пропускают свет, наполняя помещение светом. Стиральную и сушильную машину разместили в кладовой на первом этаже.
Проект ЖК "Homecity"
Проект ЖК "Homecity"
Проект ЖК "Homecity"
Проект ЖК "Homecity"

Есть вопросы по разработке ВАШЕГО проекта?

Оставьте заявку на бесплатную консультацию и мы свяжемся с вами в ближайшее время
Заполняя форму вы соглашаетесь с политикой обработки персональных данных http://or-studio.ru/policy
*Meta признана экстремистской и запрещена на территории России
Логотип OR Studio