Квартира

Жк «Ilove»

Логотип OR Studio
48 кв.м
Площадь:
Год:
Услуга:
Заказчик:
2023г
Рабочая документация
Квартира для дочери

Задачи проекта:

РЕШЕНИЕ:

Просторная кухня, спальня/гостиная с диваном и рабочим местом, гардеробная. По длине центра квартиры проходит несущая стена с двумя проходами. Треубется сделать комфортное современное пространство.
OR STUDIO
В кухне расположен круглый обеденный стол для принятия гостей, в гостиной расположена кровать-трансформер, совмещенная с диваном. У окна расположен рабочий стол со стеллажами. Гардеробная выполнена проходной, для доступа из комнаты и из прихожей.
ИСХОДНЫЙ ПЛАН
РЕАЛИЗАЦИЯ
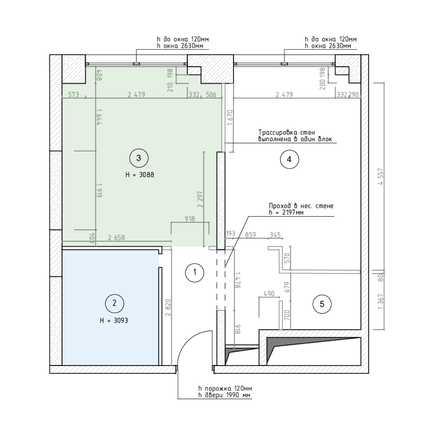
Обмерный план
Обмерный план

ИТОГОВЫЙ РЕЗУЛЬТАТ:

Получилось большое свободное пространство. Барная стойка опущена по высоте до стандартного обеденного стола. Душ выделен цветом и подсветкой.

Есть вопросы по разработке ВАШЕГО проекта?

Оставьте заявку на бесплатную консультацию и мы свяжемся с вами в ближайшее время
Заполняя форму вы соглашаетесь с политикой обработки персональных данных http://or-studio.ru/policy
*Meta признана экстремистской и запрещена на территории России
Логотип OR Studio