Квартира

Жк «Береговой»

Логотип OR Studio
85 кв.м
Площадь:
Год:
Услуга:
Заказчик:
2023г
Рабочая документация
Семья 3 человека

Задачи проекта:

РЕШЕНИЕ:

Квартира по реновации. Необходимо было в сжатые сроки переделать отделку от застройщика, совместить современные тенденции в интерьере и предметы мебели и декора из прошлого пространства. Создать комфортное проживание для семьи разного возраста. Организовать большую кухню для готовки и приема гостей. Много места для хранения.
OR STUDIO
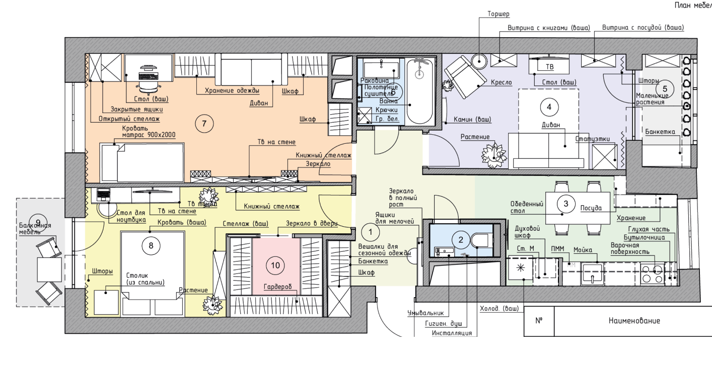
Уменьшение количества дверей в маленьком пространстве путем демонтажа двери и стены на кухню. Комбинирование шпонированых и эмалевых дверей. Создание в спальне большой гардеробной, в прихожей шкаф в сложной нише под сезонную одежду и для длительного хранения в антресоли. Детская комната зонирована на два пространства: учеба и отдых.
ИСХОДНЫЙ ПЛАН
РЕАЛИЗАЦИЯ
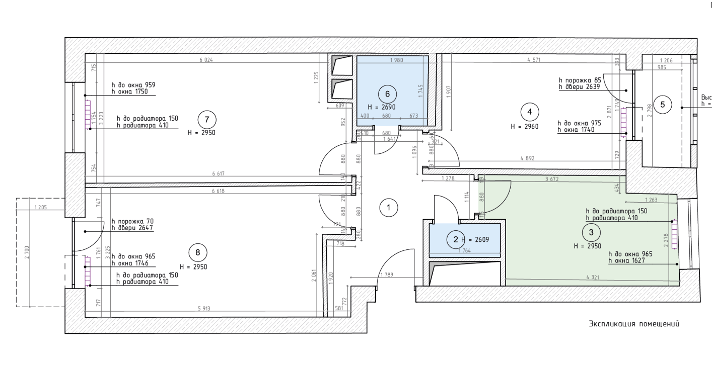
Обмерный план
Обмерный план

ИТОГОВЫЙ РЕЗУЛЬТАТ:

Демонтаж двери на кухню дал свет в прихожую и визуально увеличил пространство. Комнаты разных стилей расположили по диагонали относительно центра. Таким образом добились того, что стилистики не смешиваются. Использования зеркал над и под кухней расширило пространство и облегчило кухонный гарнитур

ЖИВЫЕ ФОТО

Есть вопросы по разработке ВАШЕГО проекта?

Оставьте заявку на бесплатную консультацию и мы свяжемся с вами в ближайшее время
Заполняя форму вы соглашаетесь с политикой обработки персональных данных http://or-studio.ru/policy
*Meta признана экстремистской и запрещена на территории России
Логотип OR Studio